X

Что такое евродвушка

на правах рекламы

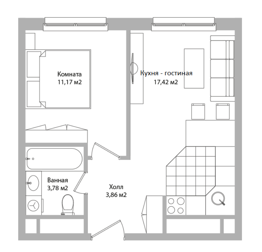
Термин «евродвушка» появился на российском рынке недвижимости сравнительно недавно и быстро стал востребованным. Под этим названием понимается квартира с одной полноценной спальней и просторной кухней-гостиной, которая выполняет функции сразу нескольких зон — места для приготовления пищи, отдыха и приёма гостей. Такое решение отличается от классической двухкомнатной планировки, где комнаты разделены и кухня занимает небольшую площадь. Евродвушка совмещает преимущества квартиры-студии и традиционного жилья, создавая современное и функциональное пространство.

Особенности планировки

Главная особенность евродвушки — рациональное использование квадратных метров. Посмотреть варианты таких квартир можно, например, по ссылке https://adresdoma.ru/evrodvushki. Благодаря объединению кухни и гостиной жильцы получают просторное помещение, где можно разместить обеденную зону, диван, рабочее место или детский уголок. При этом наличие отдельной спальни обеспечивает уединение и комфорт. В квартирах этого формата часто предусмотрены продуманные прихожие и достаточные места для хранения, что делает жильё удобным для жизни даже при относительно небольшой площади.

Кому подходит евродвушка

Евродвушка стала особенно популярна у молодых семей и активных специалистов, которые ценят современный стиль и функциональность. Для пар с ребёнком наличие отдельной спальни играет ключевую роль, а просторная кухня-гостиная позволяет проводить больше времени вместе. Также такой формат часто выбирают инвесторы: благодаря универсальной планировке квартиры пользуются стабильным спросом на рынке аренды.

Преимущества покупки

Выбор евродвушки выгоден по нескольким причинам. Во-первых, цена квадратного метра в квартирах этого формата обычно ниже, чем в классических двухкомнатных. Во-вторых, грамотная планировка позволяет создать ощущение большого пространства, не переплачивая за лишние метры. В-третьих, современный формат соответствует актуальным требованиям к жилью и обеспечивает привлекательность объекта на вторичном рынке.

Инвестиционная привлекательность

Евродвушки часто рассматривают не только как жильё, но и как инструмент для сохранения и приумножения капитала. На стадии строительства они стоят заметно дешевле, а после ввода в эксплуатацию их стоимость растёт. При сдаче в аренду такие квартиры показывают хорошую доходность, так как востребованы у арендаторов благодаря оптимальному соотношению цены, площади и удобства.

Евродвушка — это современный формат жилья, который объединяет удобство классической квартиры и эргономику студии. Такая недвижимость подходит для личного проживания и для инвестиций, а благодаря функциональной планировке и доступной цене остаётся одной из самых привлекательных опций на рынке.

Похожие записи
Leave a Comment